Ny helhedsplan for Viby Øst
Roskilde Kommune foreslår med en ny helhedsplan for Viby Øst plads til naturudvikling, idrætsfaciliteter og mere end 300 boliger i de to nye bydele, Langdyssegård og Kavsbjerggård.
Her vil idræt, regnvand og naturen danne ramme for borgernes hverdags- og fritidsliv. Det vil også danne ramme for naturudvikling med plads til en rig flora og fauna.
Lokalplan for Kavsbjerggård
Samtidig med at helhedsplanen kommer i offentlig høring, sender kommunen også det konkrete forslag om lokalplan for området Kavsbjerggård i høring.
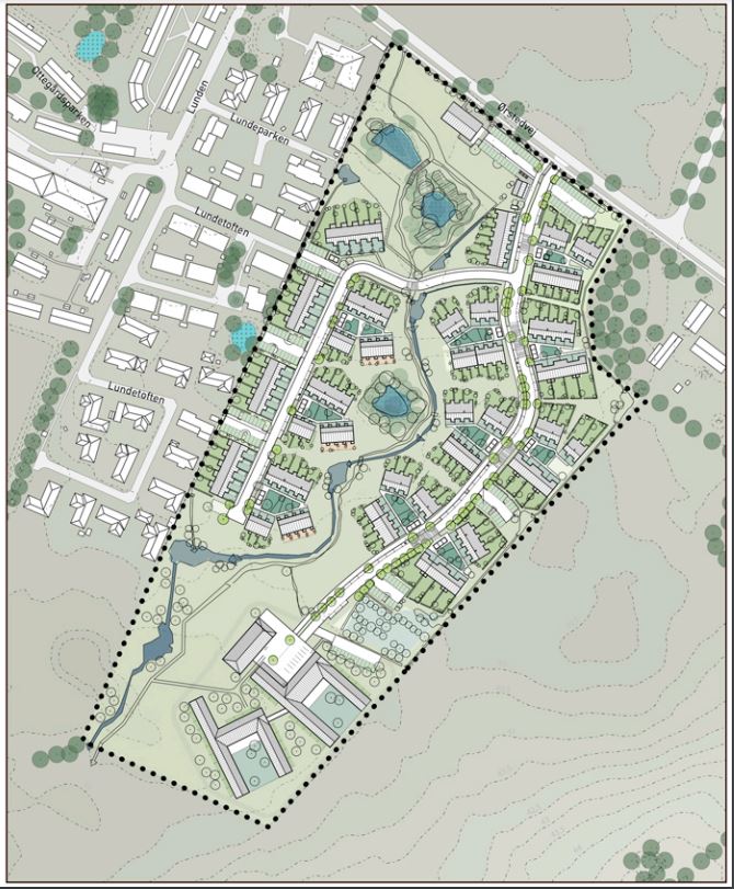
Et område på knap 7 ha. ved Kavsbjerggård er i Kommuneplan 2019 udlagt til boligudbygningsområde med en kapacitet på op til 135 boliger. Dertil udlægges 2 ha til off. formål i form af døgninstitution mv.
Lokalplanen er iværksat på baggrund af grundejers ønske om at påbegynde udviklingen af området.
Social-psykiatrisk bosted for 35 beboere
Tæt-lave boliger i varierende størrelser skal supplere Vibys store udbud af parcelhuse og bidrage til et stort udvalg af boligformer og -størrelser i Viby, i overensstemmelse med Roskilde Kommunes vedtagne boligpolitik.
Med lokalplanen for Kavsbjergård, lægger kommunen også op til, at området skal rumme et social-psykiatrisk bosted med plads til 35 beboere.
Viby Øst er et nyt byområde i en ressourcestærk by, som godt kan rumme psykisk sårbare naboer.
Borgermøde
I forbindelse med høringen afholdtes digitalt borgermøde den 14. december 2020. Se mødet her.
Borgermøde Viby Øst
Mere om Viby Øst
Kontakt Byudvikling og Grøn Omstilling
4000 Roskilde
Mandag - fredag | 9.00 - 14.00 |
Du kan forvente svar fra os inden for 10 hverdage. |




